
Homy App
10K+
Apartment (Flat) in Emba, Paphos for Sale
Emba, Paphos
- 1 beds
- 1 baths
€160,000
About this place
A luxurious apartment conveniently located with all essential amenities within easy reach. This is the perfect time to invest in a property that promises not only a stunning living environment but also a lucrative return on investment.
Key Features
Prime Location
Magnificent views of the sea and mountains from every apartment
Secure investment
High-quality finishes and modern amenities to ensure maximum comfort
AVAILABILITY
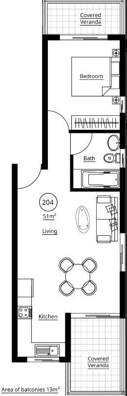
Apartments 2nd floor
Internal area 51 sq.m.
Covered veranda 13 sq.m.
There are more apartments available in this project.
Project Status: Under construction. Completion date: September 2024

Key Details
Covered Area
64 m²
Bedrooms
1
Bathrooms
1
Toilets
1
Parking Spaces
1
Completion Year
2024
Age
New
Features
Kitchen
Storage
Listed By