
Homy App
10K+
House (Detached) in Agios Tychonas, Limassol for Sale
Agios Tychonas, Limassol
- 3 beds
- 2 baths
€990,000
About this place
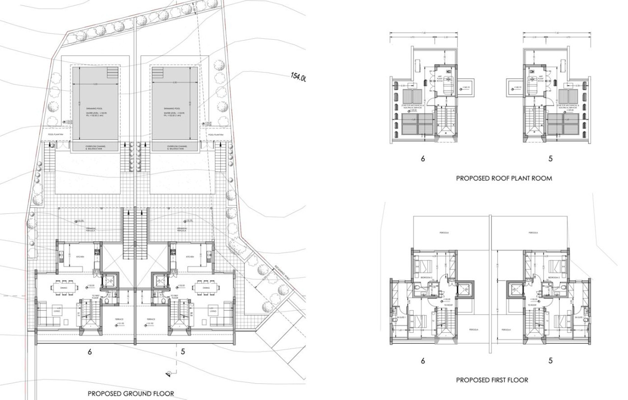
A new development located in Agios Tychonas, Limassol. 5 min from St Raphael Marina and 15 min from the City center.
Key Features
Gated community
Stunning sea view
A-class energy efficiency
Large pool area
Kids playground
AVAILABILITY
House
Internal area 221 sq.m.
Covered veranda 38 sq.m.
Project Status: Under construction
Completion date: Q4 2026

Key Details
Plot Area
480 m²
Covered Area
259 m²
Bedrooms
3
Bathrooms
2
Toilets
3
Parking Spaces
1
Uncovered Area
27
Floors
2
Completion Year
2026
Energy Class
A
Age
New
Features
Kitchen
En-Suite
Swimming Pool
Garden
Storage
Roof Garden
Sea View
Listed By





