
Homy App
10K+
House (Detached) in Geroskipou, Paphos for Sale
Geroskipou, Paphos
- 3 beds
- 2 baths
€1,100,000
About this place
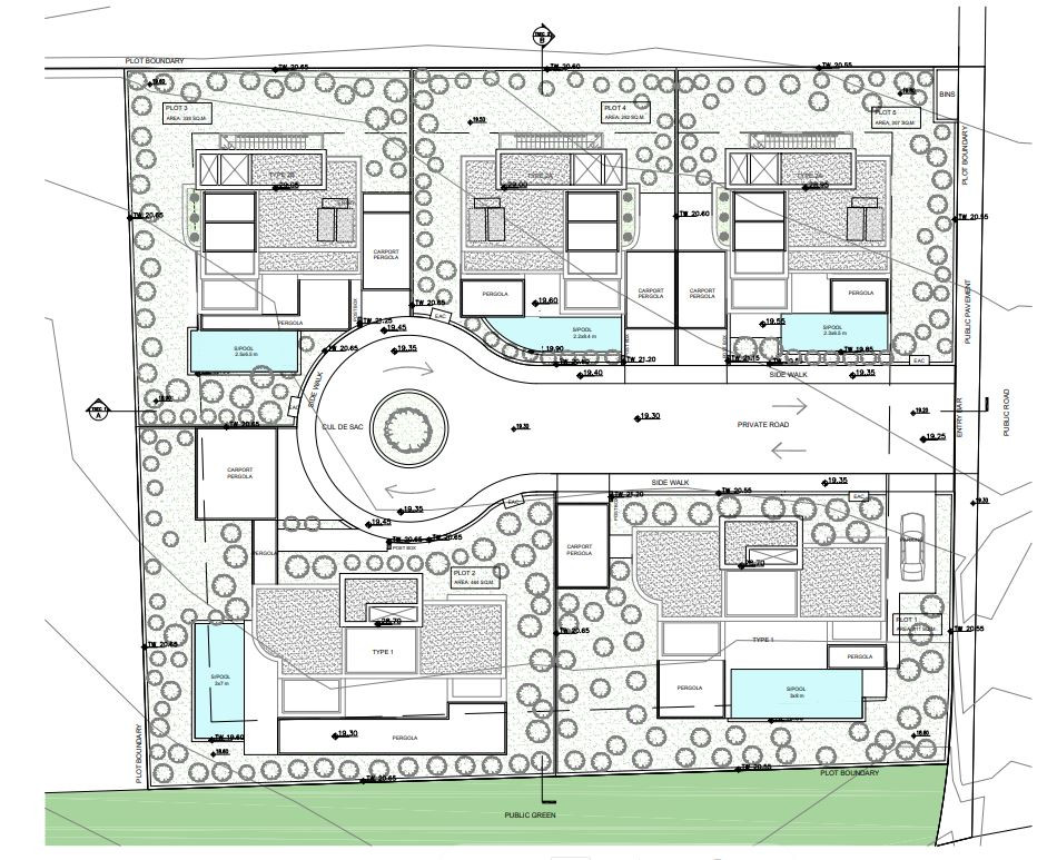
Luxury project is located in Geroskipou area, Paphos.
Just 350 m from the beach.
The project consists of 5 villas.
AVAILABILITY
House
Internal area 156 sq.m.
Covered veranda 14 sq.m.
Pergola veranda 37 sq.m.
Roof garden 15 sq.m.
There are more houses available in this project.
Project Status: Off plan
Completion date: 24 months

Key Details
Plot Area
338 m²
Covered Area
170 m²
Bedrooms
3
Bathrooms
2
Toilets
3
Parking Spaces
1
Floors
2
Completion Year
2027
Energy Class
A
Age
New
Features
Kitchen
En-Suite
Swimming Pool
Garden
Storage
Roof Garden
Listed By





