
Homy App
10K+
House (Detached) in Moni, Limassol for Sale
Moni, Limassol
- 3 beds
- 2 baths
€490,000
About this place
A new project in the area of Moni, Limassol, just a six-minute drive to the sea.
The project consists of 34 eco friendly houses.
Key Features
Sustainable wooden finishes
Open-plan living room and kitchen, a dining room
Bedrooms with high-quality wooden built-in wardrobes made of environmentally friendly materials
High-quality wooden kitchen cabinets made of environmentally friendly materials
Provisions for air conditioners and underfloor heating, fire alarm system
Private garden
AVAILABILITY
Houses
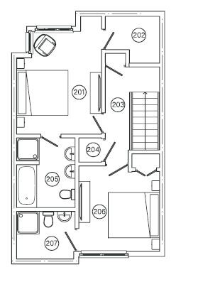
Internal area 131,75 sq.m.
Covered veranda 9,5 sq.m.
There are more houses available in this project.
Status: under construction
Completion: 6 months

Key Details
Plot Area
320 m²
Covered Area
141 m²
Bedrooms
3
Bathrooms
2
Toilets
3
Parking Spaces
1
Floors
2
Completion Year
2026
Energy Class
A
Age
New
Features
Kitchen
En-Suite
Garden
Private Garden
Listed By






