
Homy App
10K+
House (Maisonette) in Agios Tychonas, Limassol for Sale
Agios Tychonas, Limassol
- 2 beds
- 2 baths
€685,150
About this place
An exclusive luxury complex in Agios Tychonas, Limassol.
The project consists of 23 elegant houses.
Key Features
One of Limassol's quiet suburbs, just 7 minutes from the sea
Car-free area
15-minute drive to Limassol's business center
Gated complex
Clubhouse with a swimming pool, gym and coworking space
Paddle court, yoga area, summer cinema
3.7-meter ceilings in living rooms
AVAILABILITY
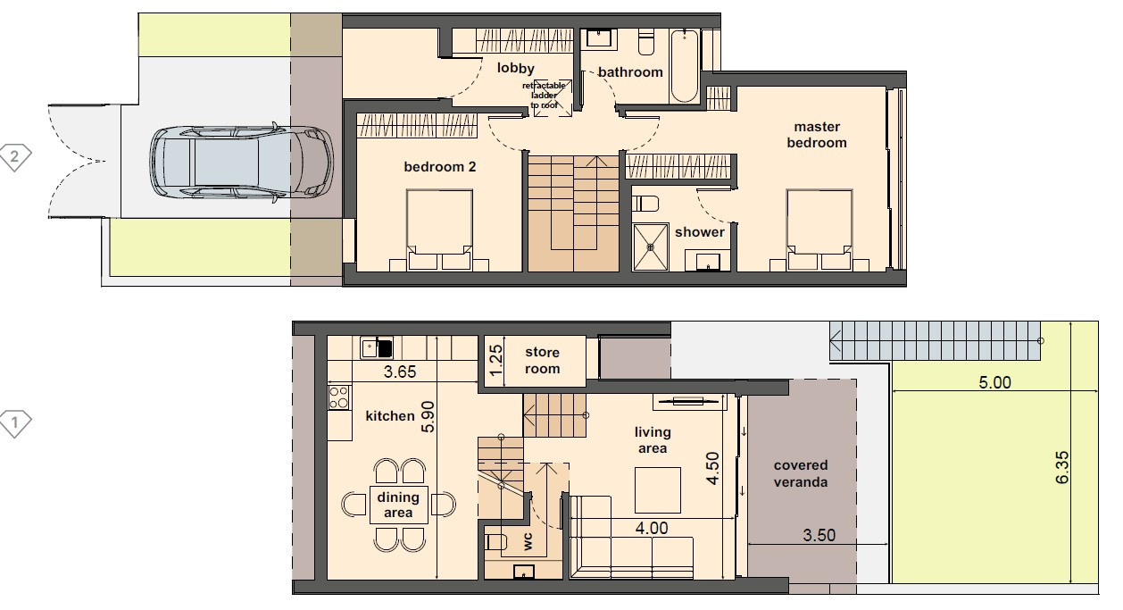
House
Internal area 131 sq.m.
Covered veranda 14,5 sq.m.
There are more houses available in this project.
Status: Off plan

Key Details
Covered Area
145 m²
Bedrooms
2
Bathrooms
2
Toilets
3
Parking Spaces
1
Floors
2
Completion Year
2027
Energy Class
A
Age
New
Features
Kitchen
En-Suite
Garden
Storage
Private Garden
Listed By











