
Homy App
10K+
House (Semi detached) in Ypsoupoli, Limassol for Sale
Ypsoupoli, Limassol
- 3 beds
- 2 baths
€365,000
About this place
A new project in Ypsonas area, Limassol.
The project consists of 3 houses.
Key Features
Provisions for electrical shutters
Central antenna TV
Provisions for A/C
Photovoltaic system on the roof 4.5KV
Electrical under floor heating (extra)
Solar water heater with water tank of 1
0
00 liters
/200
liters
Provision for swimming pool
AVAILABILITY
House
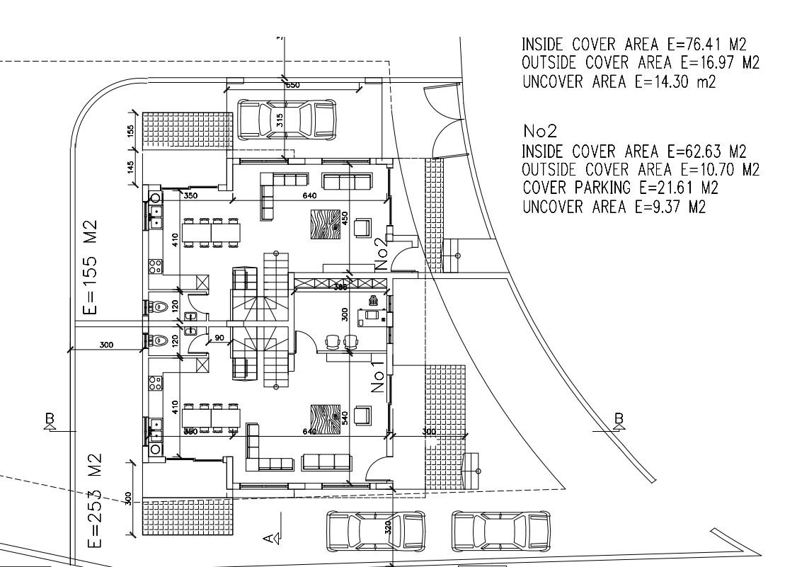
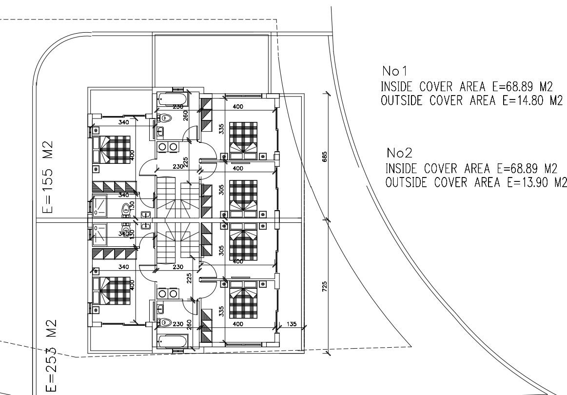
Internal area 131,52 sq.m.
Outside covered area 24,60 sq.m.
Parking 21,61 sq.m.
Uncovered area 9,37 sq.m.
There are more houses available in this project.
Status: Off plan
Completion date: 12 months

Key Details
Plot Area
155 m²
Covered Area
156 m²
Bedrooms
3
Bathrooms
2
Toilets
3
Parking Spaces
2
Floors
2
Completion Year
2026
Energy Class
A
Age
New
Features
Kitchen
En-Suite
Garden
Storage
Listed By










