
Homy App
10K+
Luxury ground floor 2-bedroom apartment in Archaggelos - Lakatameia Nicosia for sale
Strovolos, Nicosia
- 3 beds
- 2 baths
€320.000
About this place
Location
• A contemporary residential development ideally located just steps away from the beautiful Pedieos Linear Park.
• The building enjoys a peaceful setting adjacent to green areas on two sides, offering residents a harmonious blend of urban convenience and natural tranquility.
• Its strategic location provides effortless access to supermarkets, private hospitals, universities, and a wide range of shops and services.
Moreover, residents benefit from quick connectivity to Nicosia’s city center as well as the Nicosia–Troodos highway.
External Features
• This modern two-story building comprises a total of eight apartments, designed with a focus on comfort, functionality, and aesthetics.
• Each apartment includes a covered parking space and a private storage room.
• The development stands out for its contemporary architectural design and energy-efficient construction, ensuring long-term value and sustainability.
Internal Characteristics
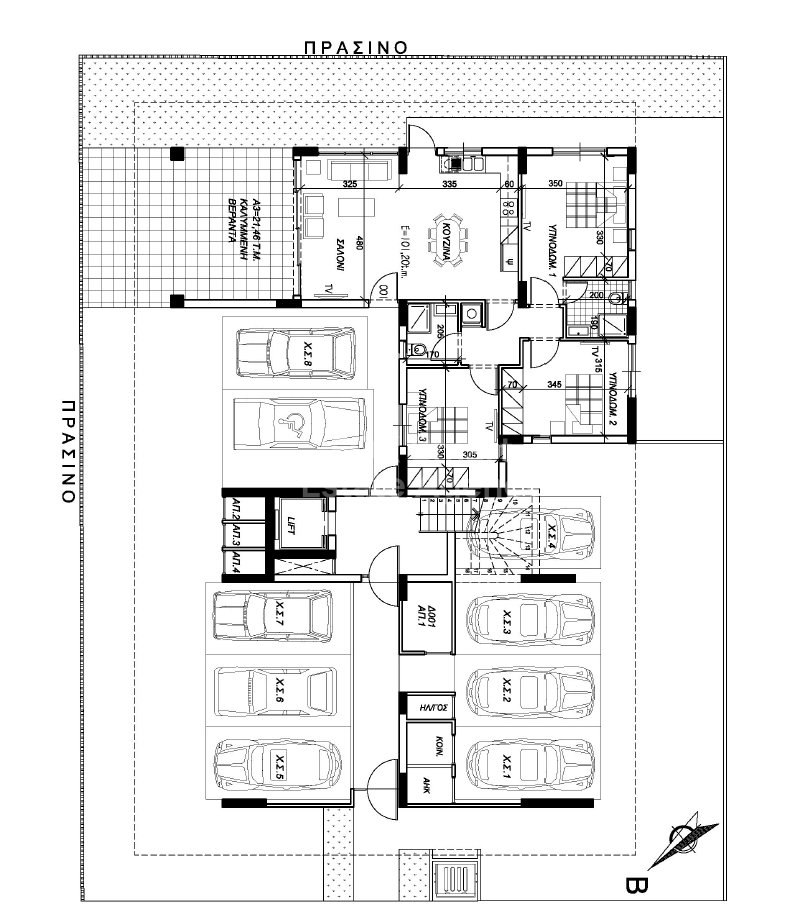
• The apartment (001) situated on the ground floor built to high specifications with Energy Efficiency Category A.
• Internal area of 101sqm plus 21sqm verandas plus 3sqm back yard which overlooking to public green area.
• It features double-glazing windows with safety energy aluminum frames (MU3000 THERMAL and/or MU2075 THERMAL) for enhanced insulation and comfort.
Three spacious bedrooms the master with en suite bathroom and the main full bathroom.
• Provisions are included for electric window shutters, electric heating, and air conditioning in all rooms.
• A solar water heating system with pressure technology is fully installed, while this two-bedroom apartment also includes provisions for a photovoltaic system.
Advantages & Special Features
• This project offers a rare combination of quality living and a prime location.
• Its proximity to green areas, major roads, and essential amenities makes it an excellent choice for homeowners and investors alike.
• Residents will appreciate the quiet neighborhood setting while enjoying easy access to universities, private hospitals, hypermarkets, and a variety of commercial facilities.
• Designed for modern lifestyles, represents comfort, efficiency, and convenience in one of Lakatameia’s most desirable areas.

Key Details
Reference Number
46007
Bedrooms
3
Bathrooms
2
Parking
1
Floor Number
2
Kitchen
Open Plan
Energy Efficiency Grade
A
Furnished Status
Unfurnished
Type
Standard Apartment
Construction Stage
Construction Phase
Heating Type
Autonomous Heating System
Toilets
2
Living Area
101 m²
Construction Year
2025
Price per Square
€3168.32/m²
Covered Verandas
21 m²
Features
Double Glazing
Solar Water Heater
Elevator
Covered Veranda
Storage Space
En-suite Shower
Plus VAT
Electricity
Water
Provision for Split Units
Listed By