
Homy App
10K+
Luxury whole floor apartment in Lykavitos, Nicosia for sale
Nicosia Center, Nicosia
- 3 beds
- 2 baths
€390.000
About this place
Location
• A luxury 4 floors building ideally located in the heart of Lykavitos, just steps away from The Landmark Towers and within walking distance of Nicosia’s city center and Kallipoleos Avenue.
• This prime address perfectly balances urban convenience with residential tranquility, offering effortless access to the city’s business, retail, and leisure hubs while maintaining a calm, private atmosphere.
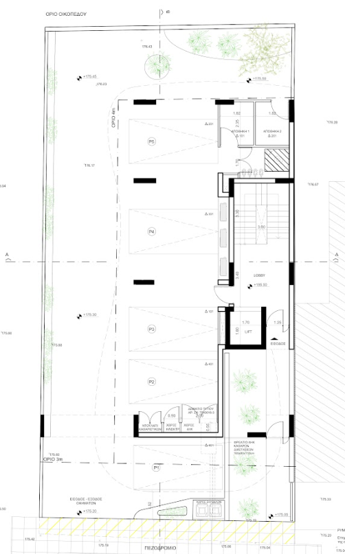
External Features
• The development is a four-storey contemporary building defined by soft, curved architectural lines and a minimal, elegant design that stands out subtly in the urban landscape.
• Its façade showcases a modern yet timeless aesthetic, emphasizing clean geometry and refined proportions.
• The exterior is further enhanced by architectural lighting, a gated entrance, landscaped surroundings, and covered private parking, ensuring both style and practicality.
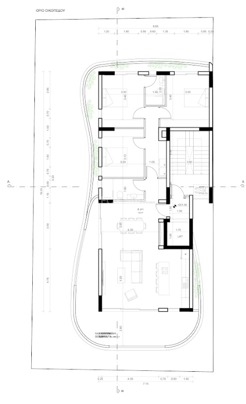
Internal Characteristics
• Spacious three-bedroom apartment entire the second floor to ensure maximum privacy.
• The open-plan layout is thoughtfully designed to create a sense of space and flow, while large openings allow daylight to fill the interiors.
Advantages & Special Features
• Whole-floor residences providing unmatched privacy and independence.
• Modern architectural identity with timeless appeal.
• Prime city- center location close to key amenities and destinations.
• High-quality construction and detailing, reflecting to the construction and development company commitment to design excellence and functionality.
• Secure gated access and private parking for every apartment.

Key Details
Reference Number
46228
Bedrooms
3
Bathrooms
2
Floor Number
2
Kitchen
Open Plan
Energy Efficiency Grade
A
Furnished Status
Unfurnished
Type
Whole Floor Apartment
Construction Stage
Off Plans
Heating Type
Autonomous Heating System
Toilets
2
Living Area
120 m²
Construction Year
2025
Price per Square
€3250/m²
Covered Verandas
36 m²
Features
Double Glazing
Solar Water Heater
Photovoltaic Panels
Elevator
Covered Veranda
Secure Door
Storage Space
En-suite Shower
Roof Garden
Plus VAT
Electricity
Water
Provision for Split Units
Listed By