
Homy App
10K+
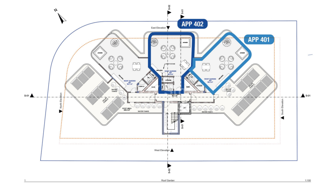
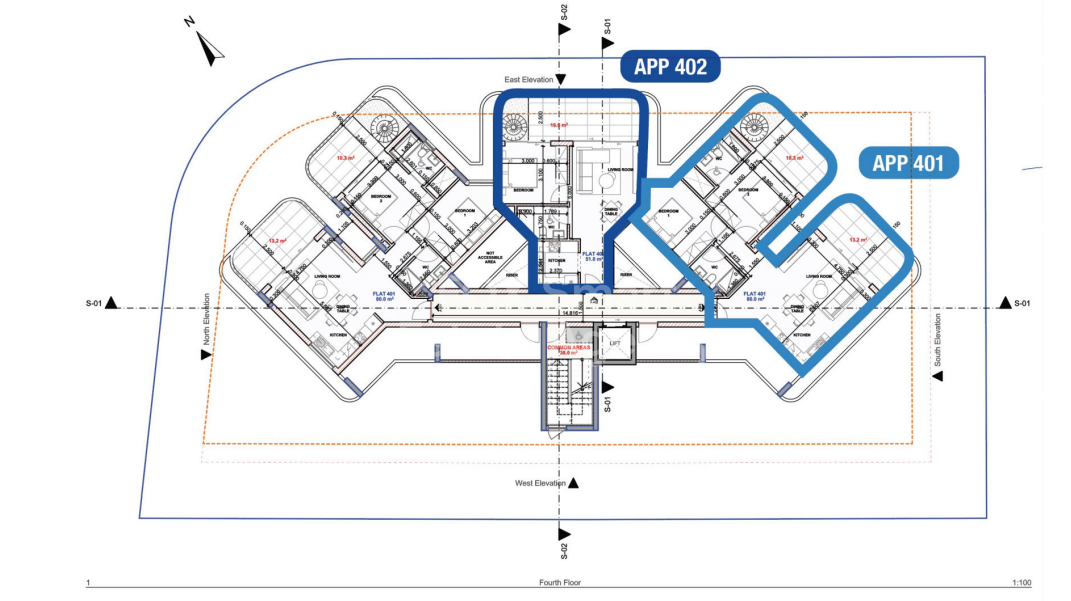
Top floor one bedroom apartment for sale, Livadia.
Livadia, Larnaca
- 1 beds
- 1 baths
€240.000
About this place
An exceptional opportunity to own a modern top-floor 1-bedroom apartment with 2 bathrooms and a private roof garden featuring an additional room, located in the highly desirable Livadia area, just minutes from the beach.
Currently under construction and set for completion by the end of 2026, this thoughtfully designed apartment offers stylish indoor living complemented by exclusive outdoor space, making it ideal for a permanent residence, holiday home, or investment.

Key Details
Reference Number
38763
Bedrooms
1
Bathrooms
1
Floor Number
4
Furnished Status
Unfurnished
Type
Penthouse
Construction Stage
Construction Phase
Living Area
51 m²
Construction Year
2024
Price per Square
€4705.88/m²
Covered Verandas
17 m²
Features
Plus VAT
Listed By